注文住宅施工事例
WORKS

注文住宅施工事例

戸建住宅

スタイリッシュでモダンな都市型住宅

帰宅後はシューズインクローゼットへ上着や帽子、マフラーなどの身の回り品を収納したらすぐに手洗い導線へ。

ウイルスや花粉を持ち込まない安心・快適なお家です。

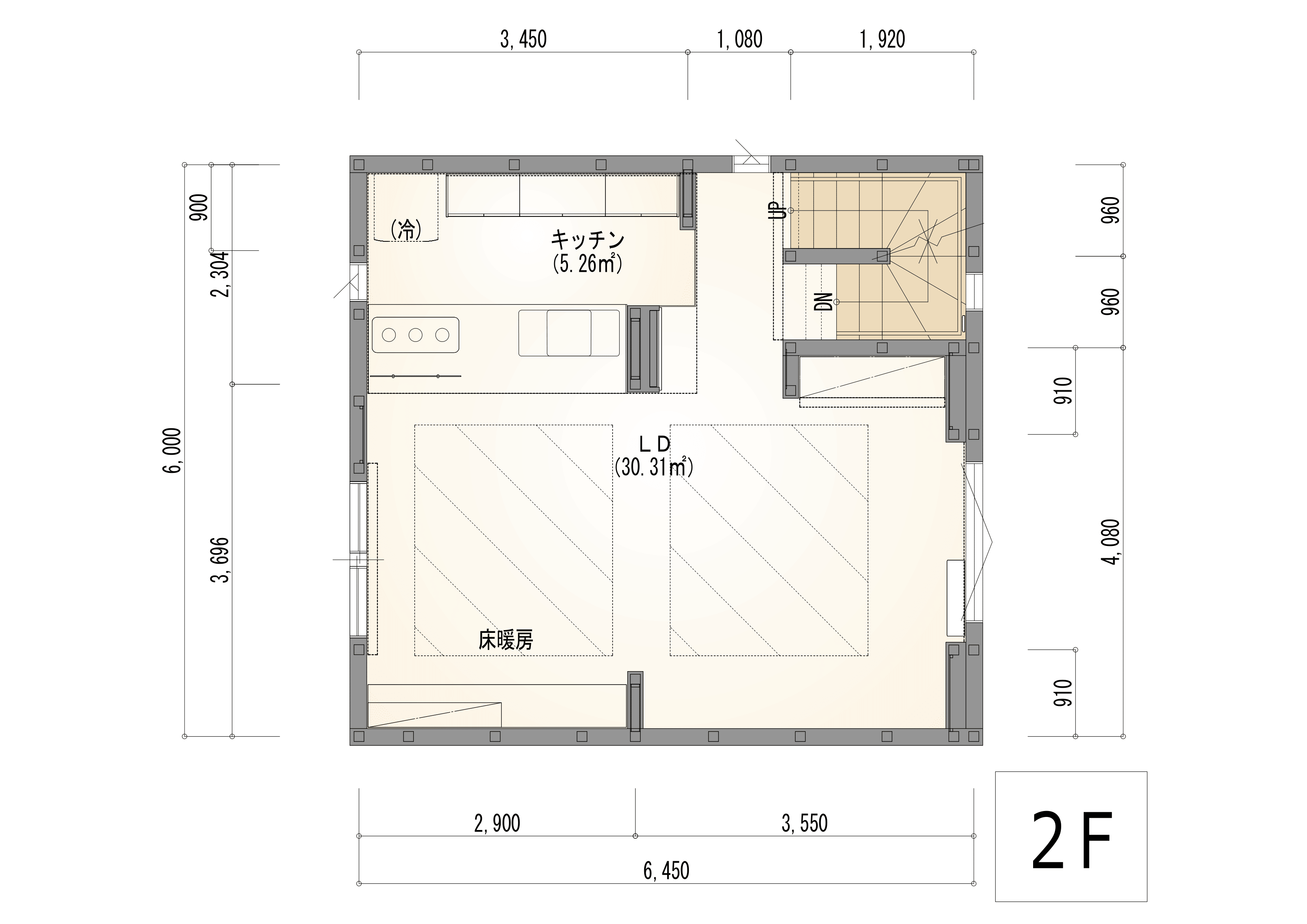
各居室にたっぷり収納を設けているので片付け上手になれる工夫もたっぷりつまっています。